Xem toàn bộ
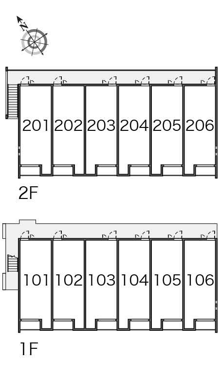
Apato クレイノエコハウス華園 101
1K / 1 tầng / 25.89m²
Yêu thích
Có đồ dùng gia dụng đi kèm
Môi trường xung quanh
Hyogo Kasai-shi 兵庫県加西市北条町横尾 Xem trên Google map
Thiết bị
Có chỗ để máy giặt
Ban công
Chỗ đỗ xe
Phòng góc
Có đồ nội thất và đồ gia dụng
Nhà tắm, nhà vệ sinh riêng
Bệ ngồi rửa nước nóng
Thiết bị làm khô nhà tắm
Chỗ rửa mặt riêng
Chuông cửa có TV
Camera an ninh

Khác :Có internet

Chi tiết nhà
Tháng năm xây dựng 2018/12
Bố trí nhà ở 1K / 1 tầng
Diện tích 25.89㎡
Bãi đỗ xe Có chỗ trống (1 chiếc) 5500 yên Cách 0m từ nhà
Cấu trúc xây dựng Gỗ
Vị trí Nhà ở tầng 1
Mặt được nắng chiếu chính Tây Nam
Chuyển
Cập nhật mới nhất 2026/03/01
Mục tiêu chi phí đầu kì
Tiền đặt cọc
0 yên
Tiền lễ
52,000 yên
Tiền nhà trước đây
yên
Tiền thuê + phí dịch vụ chung, phí quản lý
Phí trung gian
yên
Tiền nhà 1 tháng + thuế
Khác
yên
Tổng
161,000 yên
Mục tiêu chi phí hàng tháng
Tiền thuê
52,000 yên
Phí dịch vụ chung, phí quản lý...
5,000 yên
Khác
yên
Tổng
57,000 yên
Mục tiêu các chi phí khác
Phí làm mới hợp đồng
¥0
Phí thay khóa
¥0
Phí lau dọn trong phòng
¥0
Phí sử dụng công ty bảo đảm
¥0
Phí bảo hiểm nhà
Xác nhận với công ty bất động sản
Có thể có chi phí khác ngoài những mục này. Vui lòng liên hệ với công ty bất động sản để biết số tiền chính xác.
Nhà khác trong cùng tòa nhà
1K / 102号室 / 1 tầng / 25.89m²
52,000 yên / tháng
1K / 104号室 / 1 tầng / 25.89m²
56,000 yên / tháng
1K / 103号室 / 1 tầng / 25.89m²
56,000 yên / tháng
1K / 205号室 / 2 tầng / 25.89m²
59,000 yên / tháng
1K / 203号室 / 2 tầng / 25.89m²
59,000 yên / tháng
Trang chi tiết Apato クレイノエコハウス華園 101. Hãy đến với YOLO HOME nếu bạn đang tìm kiếm thông tin nhà cho thuê cho người nước ngoài và phòng dành riêng cho sinh viên quốc tế trên cả nước!
Bạn có thể tìm kiếm từ các điều kiện mong muốn của bạn. Hãy tìm nhà cho thuê phù hợp với bạn dựa trên bố trí nhà ở, tiền thuê, an ninh, thông tin thiết bị, môi trường xung quanh, v.v. Chúng tôi xin giới thiệu YOLO HOME nếu bạn cần thông tin nhà cho thuê, tìm phòng và thông tin bất động sản cho người nước ngoài trong số nhà cho thuê trên toàn quốc! Nếu bạn muốn thuê apartment, manshon hoặc nhà riêng cho thuê, hãy đến với YOLO HOME, trang web thông tin cho thuê bất động sản dành cho sinh viên quốc tế và người nước ngoài!