Tiền đặt cọc
0 yên
Tiền lễ
82,200 yên
Tiền nhà trước đây
yên
Tiền thuê + phí dịch vụ chung, phí quản lý
Phí trung gian
yên
Tiền nhà 1 tháng + thuế
Khác
yên
Tổng
253,500 yên
Khác :CATV, Ăng ten BS, Hộp đựng giày
| Tháng năm xây dựng | 2026/02 (Xây mới) |
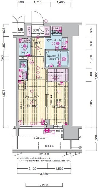
| Bố trí nhà ở | 1DK / 2 tầng |
| Diện tích | 25.55㎡ |
| Bãi đỗ xe | Không |
| Cấu trúc xây dựng | RC |
| Vị trí | |
| Mặt được nắng chiếu chính | Phía Bắc |
| Chuyển | 2026/03 Hạ tuần (10 ngày cuối tháng) |
| Cập nhật mới nhất | 2025/12/29 |

Mục tiêu chi phí đầu kì