Xem toàn bộ
Nhà manshon ワーフときわ台 0405
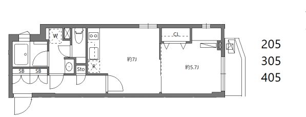
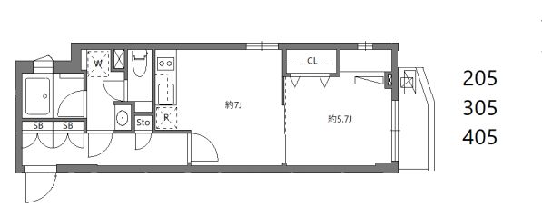
1DK / 4 tầng / 36.1m²
Yêu thích
Xây mớiTự động khoáInternet miễn phí Có thể nuôi thú cưng / trao đổiSàn nhà
Môi trường xung quanh
Tokyo Itabashi-ku 南常盤台1丁目 24-12 Xem trên Google map
Thiết bị
Gas
Cung cấp nước nóng
Có chỗ để máy giặt
Thang máy
Sàn nhà
Hộp bưu kiện
Chỗ đỗ xe
Phí sử dụng internet
Tủ quần áo
Dùng chung phòng tắm
Dùng chung nhà vệ sinh
Nhà tắm, nhà vệ sinh riêng
Bệ ngồi rửa nước nóng
Thiết bị làm khô nhà tắm
Chỗ rửa mặt riêng
Loại bếp
Số bếp
Hệ thống nhà ăn
Khóa tự động

Khác :Trao đổi về nhạc cụ, Văn phòng, Vật nuôi, Đường nước, Nước thải, Có internet

Chi tiết nhà
Tháng năm xây dựng 2025/02 (Xây mới)
Bố trí nhà ở 1DK / 4 tầng
Diện tích 36.1㎡
Bãi đỗ xe -
Cấu trúc xây dựng RC
Vị trí
Mặt được nắng chiếu chính Đông Bắc
Chuyển
Cập nhật mới nhất 2025/12/06
Mục tiêu chi phí đầu kì
Tiền đặt cọc
144,000 yên
Tiền lễ
144,000 yên
Tiền nhà trước đây
yên
Tiền thuê + phí dịch vụ chung, phí quản lý
Phí trung gian
yên
Tiền nhà 1 tháng + thuế
Khác
yên
Tổng
591,000 yên
Mục tiêu chi phí hàng tháng
Tiền thuê
144,000 yên
Phí dịch vụ chung, phí quản lý...
15,000 yên
Khác
yên
Tổng
159,000 yên
Mục tiêu các chi phí khác
Phí làm mới hợp đồng
¥0
Phí thay khóa
¥0
Phí lau dọn trong phòng
¥0
Phí sử dụng công ty bảo đảm
¥0
Phí bảo hiểm nhà
Xác nhận với công ty bất động sản
Có thể có chi phí khác ngoài những mục này. Vui lòng liên hệ với công ty bất động sản để biết số tiền chính xác.
Nhà khác trong cùng tòa nhà
1DK / 0205号室 / 2 tầng / 36.1m²
142,000 yên / tháng
1DK / 0401号室 / 4 tầng / 36.28m²
145,000 yên / tháng
1DK / 0201号室 / 2 tầng / 36.28m²
141,000 yên / tháng
1K / 0403号室 / 4 tầng / 25.93m²
113,000 yên / tháng
Trang chi tiết Nhà manshon ワーフときわ台 0405. Hãy đến với YOLO HOME nếu bạn đang tìm kiếm thông tin nhà cho thuê cho người nước ngoài và phòng dành riêng cho sinh viên quốc tế trên cả nước!
Bạn có thể tìm kiếm từ các điều kiện mong muốn của bạn. Hãy tìm nhà cho thuê phù hợp với bạn dựa trên bố trí nhà ở, tiền thuê, an ninh, thông tin thiết bị, môi trường xung quanh, v.v. Chúng tôi xin giới thiệu YOLO HOME nếu bạn cần thông tin nhà cho thuê, tìm phòng và thông tin bất động sản cho người nước ngoài trong số nhà cho thuê trên toàn quốc! Nếu bạn muốn thuê apartment, manshon hoặc nhà riêng cho thuê, hãy đến với YOLO HOME, trang web thông tin cho thuê bất động sản dành cho sinh viên quốc tế và người nước ngoài!