Xem toàn bộ
Nhà manshon SYFORME OMIYA 1103
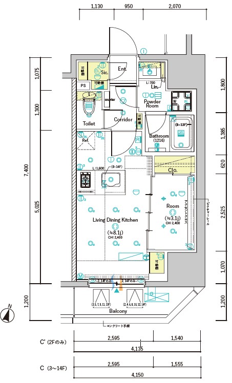
1LDK / 11 tầng / 30.71m²
Yêu thích
Xây mớiVứt rác 24h OK Tự động khoáInternet miễn phí Có thể nuôi thú cưng / trao đổiKhông cần người bảo lãnhSàn nhà
Môi trường xung quanh
Saitama Saitama-shi Omiya-ku 仲町3丁目 Xem trên Google map
Thiết bị
Gas
Có chỗ để máy giặt
Thang máy
Ban công
Sàn nhà
Hộp bưu kiện
Chỗ đỗ xe
Vứt rác 24h OK
Phí sử dụng internet
Tủ quần áo
Dùng chung phòng tắm
Dùng chung nhà vệ sinh
Nhà tắm, nhà vệ sinh riêng
Chức năng hâm nóng lại nước
Bệ ngồi rửa nước nóng
Thiết bị làm khô nhà tắm
Chỗ rửa mặt riêng
Loại bếp
Số bếp
Hệ thống nhà ăn
Quầy bếp
Khóa tự động
Camera an ninh

Khác :Ở 2 người, Vật nuôi, Thuê nhà có thời hạn, Người bảo đảm, Đường nước, Nước thải, CATV, Ăng ten CS, Ăng ten BS, Có internet, Tủ đựng đồ có thể đựng cả giầy

Chi tiết nhà
Tháng năm xây dựng 2025/11 (Xây mới)
Bố trí nhà ở 1LDK / 11 tầng
Diện tích 30.71㎡
Bãi đỗ xe -
Cấu trúc xây dựng RC
Vị trí
Mặt được nắng chiếu chính Phía Nam
Chuyển 2026/01 Hạ tuần (10 ngày cuối tháng)
Cập nhật mới nhất 2025/12/27
Mục tiêu chi phí đầu kì
Tiền đặt cọc
130,000 yên
Tiền lễ
130,000 yên
Tiền nhà trước đây
yên
Tiền thuê + phí dịch vụ chung, phí quản lý
Phí trung gian
yên
Tiền nhà 1 tháng + thuế
Khác
yên
Tổng
532,000 yên
Mục tiêu chi phí hàng tháng
Tiền thuê
130,000 yên
Phí dịch vụ chung, phí quản lý...
12,000 yên
Khác
yên
Tổng
142,000 yên
Mục tiêu các chi phí khác
Phí làm mới hợp đồng
¥0
Phí thay khóa
¥0
Phí lau dọn trong phòng
¥0
Phí sử dụng công ty bảo đảm
¥0
Phí bảo hiểm nhà
Xác nhận với công ty bất động sản
Có thể có chi phí khác ngoài những mục này. Vui lòng liên hệ với công ty bất động sản để biết số tiền chính xác.
Nhà khác trong cùng tòa nhà
1LDK / 201号室 / 2 tầng / 30.49m²
126,500 yên / tháng
1LDK / 202号室 / 2 tầng / 30.37m²
125,000 yên / tháng
1LDK / 301号室 / 3 tầng / 30.49m²
127,000 yên / tháng
1LDK / 401号室 / 4 tầng / 30.49m²
127,500 yên / tháng
1LDK / 601号室 / 6 tầng / 30.49m²
128,500 yên / tháng
1LDK / 701号室 / 7 tầng / 30.49m²
129,000 yên / tháng
1LDK / 1203号室 / 12 tầng / 30.71m²
130,500 yên / tháng
1LDK / 1303号室 / 13 tầng / 30.71m²
131,000 yên / tháng
1LDK / 1401号室 / 14 tầng / 30.49m²
132,500 yên / tháng
1LDK / 302号室 / 3 tầng / 30.37m²
125,500 yên / tháng
1LDK / 501号室 / 5 tầng / 30.49m²
128,000 yên / tháng
1LDK / 502号室 / 5 tầng / 30.37m²
126,500 yên / tháng
1LDK / 1001号室 / 10 tầng / 30.49m²
130,500 yên / tháng
1LDK / 1002号室 / 10 tầng / 30.37m²
129,000 yên / tháng
1LDK / 1003号室 / 10 tầng / 30.71m²
129,500 yên / tháng
Trang chi tiết Nhà manshon SYFORME OMIYA 1103. Hãy đến với YOLO HOME nếu bạn đang tìm kiếm thông tin nhà cho thuê cho người nước ngoài và phòng dành riêng cho sinh viên quốc tế trên cả nước!
Bạn có thể tìm kiếm từ các điều kiện mong muốn của bạn. Hãy tìm nhà cho thuê phù hợp với bạn dựa trên bố trí nhà ở, tiền thuê, an ninh, thông tin thiết bị, môi trường xung quanh, v.v. Chúng tôi xin giới thiệu YOLO HOME nếu bạn cần thông tin nhà cho thuê, tìm phòng và thông tin bất động sản cho người nước ngoài trong số nhà cho thuê trên toàn quốc! Nếu bạn muốn thuê apartment, manshon hoặc nhà riêng cho thuê, hãy đến với YOLO HOME, trang web thông tin cho thuê bất động sản dành cho sinh viên quốc tế và người nước ngoài!