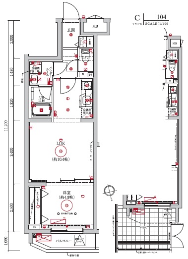
Nhà manshon LUMEED梅島 104
1LDK / 1 tầng / 37.38m²
Yêu thích
Xây mớiTự động khoáCó thể nuôi thú cưng / trao đổiKhông cần người bảo lãnhSàn nhà
Môi trường xung quanh
Tokyo Adachi-ku 梅田8丁目 Xem trên Google map
Thiết bị
Gas
Có chỗ để máy giặt
Thang máy
Sàn nhà
Hộp bưu kiện
Tủ quần áo
Dùng chung phòng tắm
Dùng chung nhà vệ sinh
Nhà tắm, nhà vệ sinh riêng
Chức năng hâm nóng lại nước
Bệ ngồi rửa nước nóng
Thiết bị làm khô nhà tắm
Chỗ rửa mặt riêng
Loại bếp
Số bếp
Hệ thống nhà ăn
Khóa tự động
Chuông cửa có TV
Camera an ninh

Khác :Trao đổi về nhạc cụ, Văn phòng, Ở 2 người, Vật nuôi, Người bảo đảm, Đường nước, Nước thải, Có internet, Hộp đựng giày

Chi tiết nhà
Tháng năm xây dựng 2025/11 (Xây mới)
Bố trí nhà ở 1LDK / 1 tầng
Diện tích 37.38㎡
Bãi đỗ xe -
Cấu trúc xây dựng RC
Vị trí Nhà ở tầng 1
Mặt được nắng chiếu chính Phía Bắc
Chuyển
Cập nhật mới nhất 2026/01/16
Mục tiêu chi phí đầu kì
Tiền đặt cọc
131,000 yên
Tiền lễ
131,000 yên
Tiền nhà trước đây
yên
Tiền thuê + phí dịch vụ chung, phí quản lý
Phí trung gian
yên
Tiền nhà 1 tháng + thuế
Khác
yên
Tổng
534,000 yên
Mục tiêu chi phí hàng tháng
Tiền thuê
131,000 yên
Phí dịch vụ chung, phí quản lý...
10,000 yên
Khác
yên
Tổng
141,000 yên
Mục tiêu các chi phí khác
Phí làm mới hợp đồng
¥0
Phí thay khóa
¥0
Phí lau dọn trong phòng
¥0
Phí sử dụng công ty bảo đảm
¥0
Phí bảo hiểm nhà
Xác nhận với công ty bất động sản
Có thể có chi phí khác ngoài những mục này. Vui lòng liên hệ với công ty bất động sản để biết số tiền chính xác.
Nhà khác trong cùng tòa nhà
2K / 101号室 / 1 tầng / 39.49m²
136,000 yên / tháng
2K / 201号室 / 2 tầng / 39.49m²
138,000 yên / tháng
2K / 301号室 / 3 tầng / 39.49m²
139,000 yên / tháng
2K / 401号室 / 4 tầng / 39.49m²
140,000 yên / tháng
2K / 102号室 / 1 tầng / 39.49m²
136,000 yên / tháng
2K / 202号室 / 2 tầng / 39.49m²
138,000 yên / tháng
2K / 302号室 / 3 tầng / 39.49m²
139,000 yên / tháng
2K / 402号室 / 4 tầng / 39.49m²
140,000 yên / tháng
2K / 502号室 / 5 tầng / 39.49m²
141,000 yên / tháng
2K / 103号室 / 1 tầng / 35.99m²
129,000 yên / tháng
2K / 203号室 / 2 tầng / 35.99m²
131,000 yên / tháng
2K / 303号室 / 3 tầng / 35.99m²
132,000 yên / tháng
2K / 403号室 / 4 tầng / 35.99m²
133,000 yên / tháng
1LDK / 104号室 / 1 tầng / 37.38m²
131,000 yên / tháng
1LDK / 204号室 / 2 tầng / 37.38m²
133,000 yên / tháng
1LDK / 304号室 / 3 tầng / 37.38m²
134,000 yên / tháng
1LDK / 404号室 / 4 tầng / 37.38m²
135,000 yên / tháng
1LDK / 503号室 / 5 tầng / 37.38m²
136,000 yên / tháng
1LDK / 205号室 / 2 tầng / 46.02m²
148,000 yên / tháng
1LDK / 405号室 / 2 tầng / 46.02m²
150,000 yên / tháng
1LDK / 305号室 / 3 tầng / 46.02m²
149,000 yên / tháng
1LDK / 504号室 / 5 tầng / 46.02m²
151,000 yên / tháng
1LDK / 504号室 / 5 tầng / 46.02m²
151,000 yên / tháng
2K / 101号室 / 1 tầng / 39.49m²
136,000 yên / tháng
2K / 201号室 / 2 tầng / 39.49m²
138,000 yên / tháng
2K / 301号室 / 3 tầng / 39.49m²
139,000 yên / tháng
2K / 401号室 / 4 tầng / 39.49m²
140,000 yên / tháng
2K / 102号室 / 1 tầng / 39.49m²
136,000 yên / tháng
2K / 202号室 / 2 tầng / 39.49m²
138,000 yên / tháng
2K / 302号室 / 3 tầng / 39.49m²
139,000 yên / tháng
2K / 402号室 / 4 tầng / 39.49m²
140,000 yên / tháng
2K / 502号室 / 5 tầng / 39.49m²
141,000 yên / tháng
2K / 103号室 / 1 tầng / 35.99m²
129,000 yên / tháng
2K / 203号室 / 2 tầng / 35.99m²
131,000 yên / tháng
2K / 303号室 / 3 tầng / 35.99m²
132,000 yên / tháng
2K / 403号室 / 4 tầng / 35.99m²
133,000 yên / tháng
1LDK / 204号室 / 2 tầng / 37.38m²
133,000 yên / tháng
1LDK / 304号室 / 3 tầng / 37.38m²
134,000 yên / tháng
1LDK / 404号室 / 4 tầng / 37.38m²
135,000 yên / tháng
1LDK / 503号室 / 5 tầng / 37.38m²
136,000 yên / tháng
1LDK / 205号室 / 2 tầng / 46.02m²
148,000 yên / tháng
1LDK / 305号室 / 3 tầng / 46.02m²
149,000 yên / tháng
1LDK / 405号室 / 4 tầng / 46.02m²
150,000 yên / tháng
Trang chi tiết Nhà manshon LUMEED梅島 104. Hãy đến với YOLO HOME nếu bạn đang tìm kiếm thông tin nhà cho thuê cho người nước ngoài và phòng dành riêng cho sinh viên quốc tế trên cả nước!
Bạn có thể tìm kiếm từ các điều kiện mong muốn của bạn. Hãy tìm nhà cho thuê phù hợp với bạn dựa trên bố trí nhà ở, tiền thuê, an ninh, thông tin thiết bị, môi trường xung quanh, v.v. Chúng tôi xin giới thiệu YOLO HOME nếu bạn cần thông tin nhà cho thuê, tìm phòng và thông tin bất động sản cho người nước ngoài trong số nhà cho thuê trên toàn quốc! Nếu bạn muốn thuê apartment, manshon hoặc nhà riêng cho thuê, hãy đến với YOLO HOME, trang web thông tin cho thuê bất động sản dành cho sinh viên quốc tế và người nước ngoài!