Nhà manshon ザ・パークハビオ荏原中延プレイス 605
1K / 6 tầng / 30.78m²
Yêu thích
Tự động khoáSàn nhà
Môi trường xung quanh
Tokyo Shinagawa-ku 東中延1丁目 12番11号 Xem trên Google map
Thiết bị
Có chỗ để máy giặt
Thang máy
Ban công
Sàn nhà
Hộp bưu kiện
Phòng góc
Có gắn thiết bị chiếu sáng
Nhà tắm, nhà vệ sinh riêng
Vòi hoa sen
Chức năng hâm nóng lại nước
Bệ ngồi rửa nước nóng
Thiết bị làm khô nhà tắm
Loại bếp
Số bếp
Hệ thống nhà ăn
Khóa tự động
Chuông cửa có TV
Camera an ninh

Khác :Trao đổi về nhạc cụ, Văn phòng, Vật nuôi, Có internet, Phòng của trẻ, Tủ đựng đồ có thể đựng cả giầy

Chi tiết nhà
Tháng năm xây dựng 2023/06
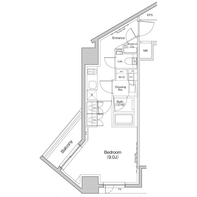
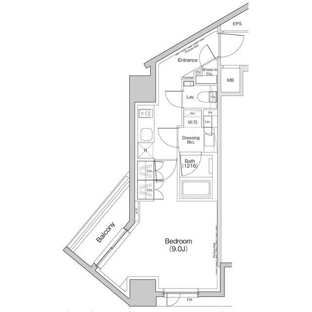
Bố trí nhà ở 1K / 6 tầng
Diện tích 30.78㎡
Bãi đỗ xe Có chỗ trống (1 chiếc) 44000 yên
Cấu trúc xây dựng RC
Vị trí
Mặt được nắng chiếu chính Phía Tây
Chuyển 2026/04 Hạ tuần (10 ngày cuối tháng)
Cập nhật mới nhất 2026/03/02
Mục tiêu chi phí đầu kì
Tiền đặt cọc
134,000 yên
Tiền lễ
134,000 yên
Tiền nhà trước đây
yên
Tiền thuê + phí dịch vụ chung, phí quản lý
Phí trung gian
yên
Tiền nhà 1 tháng + thuế
Khác
yên
Tổng
556,000 yên
Mục tiêu chi phí hàng tháng
Tiền thuê
134,000 yên
Phí dịch vụ chung, phí quản lý...
20,000 yên
Khác
yên
Tổng
154,000 yên
Mục tiêu các chi phí khác
Phí làm mới hợp đồng
¥0
Phí thay khóa
¥0
Phí lau dọn trong phòng
¥0
Phí sử dụng công ty bảo đảm
¥0
Phí bảo hiểm nhà
Xác nhận với công ty bất động sản
Có thể có chi phí khác ngoài những mục này. Vui lòng liên hệ với công ty bất động sản để biết số tiền chính xác.
Nhà khác trong cùng tòa nhà
1K / 1204号室 / 12 tầng / 30.78m²
139,000 yên / tháng
1LDK / 1402号室 / 14 tầng / 48.24m²
272,000 yên / tháng
Trang chi tiết Nhà manshon ザ・パークハビオ荏原中延プレイス 605. Hãy đến với YOLO HOME nếu bạn đang tìm kiếm thông tin nhà cho thuê cho người nước ngoài và phòng dành riêng cho sinh viên quốc tế trên cả nước!
Bạn có thể tìm kiếm từ các điều kiện mong muốn của bạn. Hãy tìm nhà cho thuê phù hợp với bạn dựa trên bố trí nhà ở, tiền thuê, an ninh, thông tin thiết bị, môi trường xung quanh, v.v. Chúng tôi xin giới thiệu YOLO HOME nếu bạn cần thông tin nhà cho thuê, tìm phòng và thông tin bất động sản cho người nước ngoài trong số nhà cho thuê trên toàn quốc! Nếu bạn muốn thuê apartment, manshon hoặc nhà riêng cho thuê, hãy đến với YOLO HOME, trang web thông tin cho thuê bất động sản dành cho sinh viên quốc tế và người nước ngoài!