Xem toàn bộ
Apato テラス上北沢 03
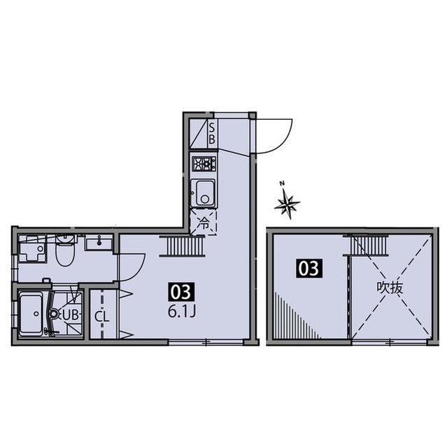
1R / 2 tầng / 15.07m²
Yêu thích
Nhà thiết kếInternet miễn phí Sàn nhà
Môi trường xung quanh
Tokyo Setagaya-ku 上北沢5丁目 50-32 Xem trên Google map
Thiết bị
Gas
Cung cấp nước nóng
Có gác xép
Có chỗ để máy giặt
Sàn nhà
Phòng góc
Nhà thiết kế
Phí sử dụng internet
Tủ quần áo
Có gắn thiết bị chiếu sáng
Tầng trên cùng
Nhà tắm, nhà vệ sinh riêng
Bệ ngồi rửa nước nóng
Thiết bị làm khô nhà tắm
Chỗ rửa mặt riêng
Loại bếp
Số bếp
Hệ thống nhà ăn
Chuông cửa có TV
Camera an ninh

Khác :Hộp đựng giày

Chi tiết nhà
Tháng năm xây dựng 2018/10
Bố trí nhà ở 1R / 2 tầng
Diện tích 15.07㎡
Bãi đỗ xe Không
Cấu trúc xây dựng Gỗ
Vị trí
Mặt được nắng chiếu chính Phía Nam
Chuyển 2026/03 Hạ tuần (10 ngày cuối tháng)
Cập nhật mới nhất 2026/03/04
Mục tiêu chi phí đầu kì
Tiền đặt cọc
0 yên
Tiền lễ
85,000 yên
Tiền nhà trước đây
yên
Tiền thuê + phí dịch vụ chung, phí quản lý
Phí trung gian
yên
Tiền nhà 1 tháng + thuế
Khác
yên
Tổng
259,000 yên
Mục tiêu chi phí hàng tháng
Tiền thuê
85,000 yên
Phí dịch vụ chung, phí quản lý...
4,000 yên
Khác
yên
Tổng
89,000 yên
Mục tiêu các chi phí khác
Phí làm mới hợp đồng
¥0
Phí thay khóa
¥0
Phí lau dọn trong phòng
¥0
Phí sử dụng công ty bảo đảm
¥0
Phí bảo hiểm nhà
Xác nhận với công ty bất động sản
Có thể có chi phí khác ngoài những mục này. Vui lòng liên hệ với công ty bất động sản để biết số tiền chính xác.
Trang chi tiết Apato テラス上北沢 03. Hãy đến với YOLO HOME nếu bạn đang tìm kiếm thông tin nhà cho thuê cho người nước ngoài và phòng dành riêng cho sinh viên quốc tế trên cả nước!
Bạn có thể tìm kiếm từ các điều kiện mong muốn của bạn. Hãy tìm nhà cho thuê phù hợp với bạn dựa trên bố trí nhà ở, tiền thuê, an ninh, thông tin thiết bị, môi trường xung quanh, v.v. Chúng tôi xin giới thiệu YOLO HOME nếu bạn cần thông tin nhà cho thuê, tìm phòng và thông tin bất động sản cho người nước ngoài trong số nhà cho thuê trên toàn quốc! Nếu bạn muốn thuê apartment, manshon hoặc nhà riêng cho thuê, hãy đến với YOLO HOME, trang web thông tin cho thuê bất động sản dành cho sinh viên quốc tế và người nước ngoài!