Xem toàn bộ
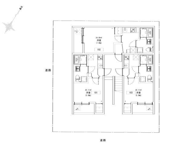
Apato イーリス 203
1K / 2 tầng / 20.11m²
Yêu thích
Nhà thiết kếInternet miễn phí Không cần người bảo lãnhSàn nhà
Môi trường xung quanh
Hyogo Kobe-shi Nagata-ku 長楽町4丁目 3-4 Xem trên Google map
Thiết bị
Gas
Cung cấp nước nóng
Có chỗ để máy giặt
Ban công
Sàn nhà
Phòng góc
Nhà thiết kế
Phí sử dụng internet
Tủ quần áo
Nhà tắm, nhà vệ sinh riêng
Vòi hoa sen
Chức năng hâm nóng lại nước
Bệ ngồi rửa nước nóng
Chỗ rửa mặt riêng
Loại bếp
Số bếp
Hệ thống nhà ăn
Chuông cửa có TV

Khác :Ở 1 người, Vật nuôi, Người bảo đảm, Đường nước, Nước thải, Có internet, Chia sẻ phòng, Hộp đựng giày

Chi tiết nhà
Tháng năm xây dựng 2017/10
Bố trí nhà ở 1K / 2 tầng
Diện tích 20.11㎡
Bãi đỗ xe Không
Cấu trúc xây dựng Gỗ
Vị trí
Mặt được nắng chiếu chính Đông Nam
Chuyển 2026/04 Trung tuần (10 ngày giữa tháng)
Cập nhật mới nhất 2026/04/13
Mục tiêu chi phí đầu kì
Tiền đặt cọc
0 yên
Tiền lễ
0 yên
Tiền nhà trước đây
yên
Tiền thuê + phí dịch vụ chung, phí quản lý
Phí trung gian
yên
Tiền nhà 1 tháng + thuế
Khác
yên
Tổng
111,000 yên
Mục tiêu chi phí hàng tháng
Tiền thuê
54,000 yên
Phí dịch vụ chung, phí quản lý...
3,000 yên
Khác
yên
Tổng
57,000 yên
Mục tiêu các chi phí khác
Phí làm mới hợp đồng
¥0
Phí thay khóa
¥0
Phí lau dọn trong phòng
¥0
Phí sử dụng công ty bảo đảm
¥0
Phí bảo hiểm nhà
Xác nhận với công ty bất động sản
Có thể có chi phí khác ngoài những mục này. Vui lòng liên hệ với công ty bất động sản để biết số tiền chính xác.
Trang chi tiết Apato イーリス 203. Hãy đến với YOLO HOME nếu bạn đang tìm kiếm thông tin nhà cho thuê cho người nước ngoài và phòng dành riêng cho sinh viên quốc tế trên cả nước!
Bạn có thể tìm kiếm từ các điều kiện mong muốn của bạn. Hãy tìm nhà cho thuê phù hợp với bạn dựa trên bố trí nhà ở, tiền thuê, an ninh, thông tin thiết bị, môi trường xung quanh, v.v. Chúng tôi xin giới thiệu YOLO HOME nếu bạn cần thông tin nhà cho thuê, tìm phòng và thông tin bất động sản cho người nước ngoài trong số nhà cho thuê trên toàn quốc! Nếu bạn muốn thuê apartment, manshon hoặc nhà riêng cho thuê, hãy đến với YOLO HOME, trang web thông tin cho thuê bất động sản dành cho sinh viên quốc tế và người nước ngoài!