Xem toàn bộ
Nhà manshon アジールコート東大井 219
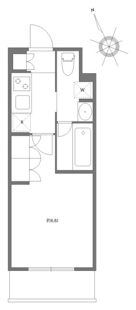
1K / 2 tầng / 21.76m²
Yêu thích
Nhà thiết kếTự động khoáInternet miễn phí Tủ âm tườngSàn nhà
Môi trường xung quanh
Tokyo Shinagawa-ku 東大井2丁目 20-10 Xem trên Google map
Thiết bị
Gas
Cung cấp nước nóng
Tủ quần áo W.IN
Có chỗ để máy giặt
Thang máy
Ban công
Sàn nhà
Hộp bưu kiện
Chỗ đỗ xe
Nơi để xe máy
Nhà thiết kế
Phí sử dụng internet
Tủ quần áo
Có gắn thiết bị chiếu sáng
Dùng chung phòng tắm
Dùng chung nhà vệ sinh
Nhà tắm, nhà vệ sinh riêng
Vòi hoa sen
Bệ ngồi rửa nước nóng
Thiết bị làm khô nhà tắm
Chỗ rửa mặt riêng
Loại bếp
Số bếp
Hệ thống nhà ăn
Khóa tự động
Chuông cửa có TV
Camera an ninh

Khác :Trao đổi về nhạc cụ, Văn phòng, Vật nuôi, Đường nước, Nước thải, Ăng ten CS, Ăng ten BS, Có internet, Hộp đựng giày

Chi tiết nhà
Tháng năm xây dựng 2020/10
Bố trí nhà ở 1K / 2 tầng
Diện tích 21.76㎡
Bãi đỗ xe -
Cấu trúc xây dựng RC
Vị trí
Mặt được nắng chiếu chính Tây Nam
Chuyển 2026/06 null
Cập nhật mới nhất 2026/05/25
Mục tiêu chi phí đầu kì
Tiền đặt cọc
120,000 yên
Tiền lễ
120,000 yên
Tiền nhà trước đây
yên
Tiền thuê + phí dịch vụ chung, phí quản lý
Phí trung gian
yên
Tiền nhà 1 tháng + thuế
Khác
yên
Tổng
492,000 yên
Mục tiêu chi phí hàng tháng
Tiền thuê
120,000 yên
Phí dịch vụ chung, phí quản lý...
12,000 yên
Khác
yên
Tổng
132,000 yên
Mục tiêu các chi phí khác
Phí làm mới hợp đồng
¥0
Phí thay khóa
¥0
Phí lau dọn trong phòng
¥0
Phí sử dụng công ty bảo đảm
¥0
Phí bảo hiểm nhà
Xác nhận với công ty bất động sản
Có thể có chi phí khác ngoài những mục này. Vui lòng liên hệ với công ty bất động sản để biết số tiền chính xác.
Nhà khác trong cùng tòa nhà
1K / 312号室 / 3 tầng / 21.48m²
120,000 yên / tháng
1K / 317号室 / 3 tầng / 21.76m²
120,000 yên / tháng
1K / 503号室 / 5 tầng / 21.18m²
122,000 yên / tháng
1K / 413号室 / 4 tầng / 21.48m²
121,000 yên / tháng
1K / 305号室 / 3 tầng / 21.35m²
120,000 yên / tháng
1LDK / 401号室 / 4 tầng / 40.78m²
183,000 yên / tháng
1K / 419号室 / 4 tầng / 21.76m²
121,000 yên / tháng
Trang chi tiết Nhà manshon アジールコート東大井 219. Hãy đến với YOLO HOME nếu bạn đang tìm kiếm thông tin nhà cho thuê cho người nước ngoài và phòng dành riêng cho sinh viên quốc tế trên cả nước!
Bạn có thể tìm kiếm từ các điều kiện mong muốn của bạn. Hãy tìm nhà cho thuê phù hợp với bạn dựa trên bố trí nhà ở, tiền thuê, an ninh, thông tin thiết bị, môi trường xung quanh, v.v. Chúng tôi xin giới thiệu YOLO HOME nếu bạn cần thông tin nhà cho thuê, tìm phòng và thông tin bất động sản cho người nước ngoài trong số nhà cho thuê trên toàn quốc! Nếu bạn muốn thuê apartment, manshon hoặc nhà riêng cho thuê, hãy đến với YOLO HOME, trang web thông tin cho thuê bất động sản dành cho sinh viên quốc tế và người nước ngoài!