Tiền đặt cọc
148,000 yên
Tiền lễ
0 yên
Tiền nhà trước đây
yên
Tiền thuê + phí dịch vụ chung, phí quản lý
Phí trung gian
yên
Tiền nhà 1 tháng + thuế
Khác
yên
Tổng
464,000 yên
Khác :Văn phòng, Vật nuôi, Thuê nhà có thời hạn
| Tháng năm xây dựng | 2026/02 (Xây mới) |
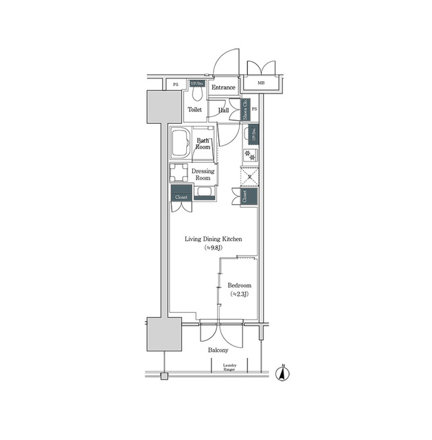
| Bố trí nhà ở | 1LDK / 2 tầng |
| Diện tích | 30.94㎡ |
| Bãi đỗ xe | Không |
| Cấu trúc xây dựng | RC |
| Vị trí | |
| Mặt được nắng chiếu chính | Phía Nam |
| Chuyển | 2026/03 Trung tuần (10 ngày giữa tháng) |
| Cập nhật mới nhất | 2026/02/26 |

Mục tiêu chi phí đầu kì